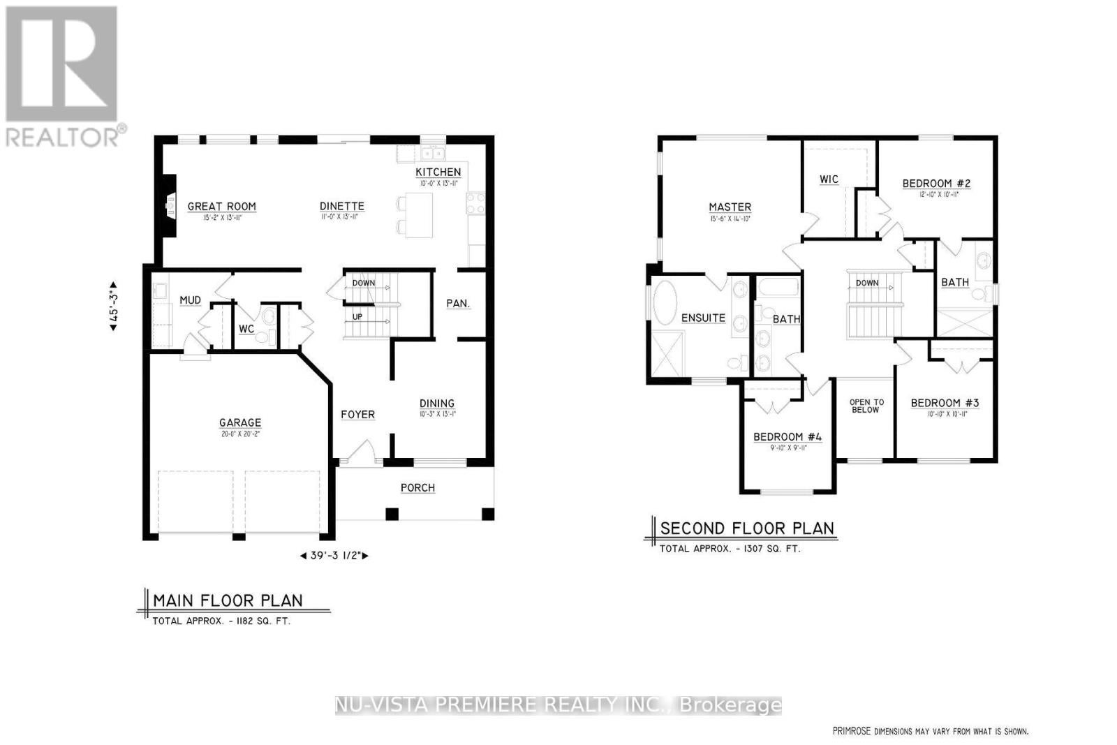
OLDE CLOVER VILLAGE PHASE 5 in Lucan: Just open! Executive sized lots situated on a quiet crescent! The PRIMROSE model offers 2489 sq ft with 4 bedrooms and 3.5 bathrooms. Special features include large 2 car garage, hardwood flooring, spacious kitchen design with large center island, quartz or granite tops, 9 ft ceilings, luxury 5pc ensuite with glass shower, electric fireplace and main floor laundry room. Lots of opportunity for customization. Enjoy a covered front porch and the peace and quiet of small town living but just a short drive to the big city. Full package of plans and lot options available. (id:4069)
Address
162 WATTS DRIVE
List Price
$989,900
Property Type
Single Family
Type of Dwelling
Single Family
Transaction Type
Sale
Area
Ontario
Sub-Area
Lucan Biddulph (lucan)
Bedrooms
4
Bathrooms
5
Floor Area
2000 - 2500 Sq. Ft.
Lot Size
48.5 x 119.9 FT Sq. Ft.
MLS® Number
X12449990
Listing Brokerage
NU-VISTA PREMIERE REALTY INC.
Basement Area
Full (Finished)
Postal Code
N0M2J0
Zoning
R-1 8-H
Amenities
Fireplace(s)




